Rénovation partielle, aménagement et décoration d’un appartement, Marseille
Le projet
Mes clients ont fait l’acquisition d’un très bel appartement datant des années 80 mais qui avait besoin d’une rénovation partielle afin de le remettre au goût du jour. Les nouveaux propriétaires souhaitaient d’abord se familiariser avec les lieux avant d’entamer de lourds travaux de rénovation. C’est pourquoi ils ont fait le choix de s’atteler aux postes les plus urgents à savoir les pièces techniques telles que la cuisine, les deux salles de bains et les toilettes.
Les clients souhaitaient une cuisine conviviale avec un espace repas avec banquette pour prendre des repas minutes avec vue sur les collines de Marseilleveyre. Les pièces d’eau quant à elles ont nécessité la dépose de l’ancien carrelage pour y installer un carrelage plus actuel dans des teintes claires mais dans un esprit chic et épuré.
En ce qui concerne les pièces à vivre, ils souhaitaient principalement revoir la couleur des murs et aménager la terrasse. Ils ont également profité de ce nouvel appartement pour remplacer une partie du mobilier et de la décoration. Mes clients souhaitaient une décoration dans un style mêlant le vintage des années 50-60 aux accents brutalistes d’où un choix assez orienté vers du mobilier en bois et des couleurs terreuses. Enfin, mes clients rêvaient depuis longtemps de pouvoir profiter d’une terrasse pour y recevoir amis et familles, le tout dans une décoration aux accents de la Méditerranée.
Avant
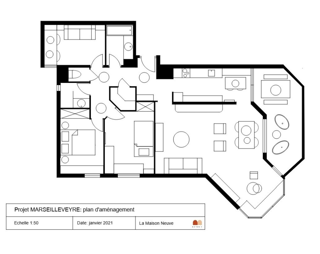
Le plan d’aménagement

LA PROJECTION 3D






















